產品中心
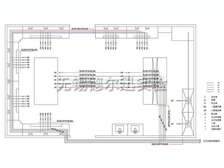
氣路系統
氣路系統
在現代化的實驗室中,為了完成實驗,需要用到多種分析儀器,如氣相色譜儀,原子吸收,氣—質聯用儀,ICP等等,其中這些儀器需要用到高純氣體,傳統的做法是采用獨立鋼瓶分散供氣的模式,這種供氣模式每臺儀器設備單獨配置氣體鋼瓶,分別滿足每臺儀器設備的使用,但隨著近年來實驗室投資的不斷加大,儀器設備的迅速增加,用氣量也逐年增加,傳統的供氣模式已經難以滿足儀器設備增加的需求,同時分散供氣模式帶來的實驗室布局混亂,鋼瓶的頻繁替換也對實驗室的管理和維護造成了困難,為了解決以上兩個方面的問題,就需要一套安全性高且能實現集中分配供氣的系統完成從氣源向儀器的供氣,這就是實驗室高純氣體管道系統的功能所在。
2018/07/13 14:33:05
6594 次
相關產品









